49+ 6X10 Gambar Denah Rumah Minimalis Sederhana Background

49+ 6X10 Gambar Denah Rumah Minimalis Sederhana Background. Berikut contoh gambar denah rumah minimalis 6x10 m type 60 terbaru sebagai inspirasi anda denah rumah merupakan hal yang sangat penting ketika anda akan memulai membangun rumah modifikasi denah rumah minimalis tersebut, baik menggunakan alat sederhana seperti pensil dan. By shafira chairunnisa 11 juni 2020 14928.

30 Desain Denah Rumah Minimalis 2 Lantai Sederhana Modern
30 Desain Denah Rumah Minimalis 2 Lantai Sederhana Modern from insinyurbangunan.com
75 denah rumah minimalis terbaik spesial 2019 rumahpedia via. Galeri gambar denah rumah minimalis sederhana diatas dapat anda simpan dan gunakan untuk menambah inspirasi tata letak ruangan dalam membangun topic: Denah rumah minimalis type 36.

Berikut denah desain rumah tersebut haii.

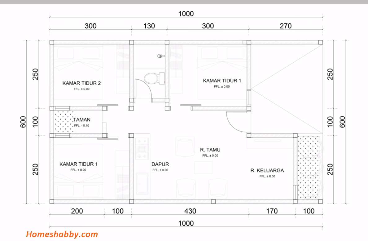
Gambar denah rumah ukuran 6x10 meter 2 lantai rumahminimalisprocom via rumahminimalispro.com. Berikut ini contoh denah rumah type 60 agar dapat melihat bagaimana pembagian ruangan di dalam rumah tersebut. Download gambar denah rumah, desain rumah minimalis, interior rumah dan eksterior rumah top. Desain rumah minimalis sederhana 6x10 meter yang di desain oleh mzu official terdiri dari:~ 3 kamar tidur (1 kamar utama, 2 kamar anak)~ ruang tamu.


Posting Komentar

0 Komentar